ネクストエナジー ソーラーカーポート「Dulight(デュライト)」|特徴・仕様・メリット
\ 工事費含めた販売価格はお問い合わせください /
【発電するカーポート!】両面発電太陽光パネルで効率も◎

– 公式動画 –
製品の特長
ソーラーカーポートとは、自動車を守るためのカーポートにソーラーパネルを設置して太陽光発電を行うものです。
ここでは、注目のネクストエナジーの住宅用ソーラーカーポート Dulight(デュライト)の特徴を解説していきます。
【1】家計に優しい経済性
ネクストエナジーのデュライトは、「経済効果が生まれる」という一般的なカーポートにない特長を持ったソーラーカーポートです。

一般的なカーポートは、購入後に費用回収できませんし、導入から5年・10年と経過すると経年劣化していき修理や買い替えのコストもかかってきます。
そのため、カーポートで経済的メリットを得るのは、難しい状況といえます。
一方、ソーラーカーポートのデュライトは、カーポートの屋根に太陽光パネルが設置されていて、日光を電気変換してくれます。また、発電した電気は、電力会社へ売電したり自家消費したりできます。
FIT制度の認定を受けていれば、自家消費したのち余った電力を10年間(出力10kW未満の場合)固定の単価で電力会社に買い取ってもらえます。
つまり、売電収入や電気代削減によって余った家計から費用回収できるため、生活費への影響を与えずに運用し続けられます。
【2】両面発電の太陽光パネルでたくさん発電
ネクストエナジーのデュライトは、屋根と一体型の両面太陽光パネルで発電するタイプのソーラーカーポートです。
両面太陽光パネルの場合は、パネル表面で太陽光を直接吸収し、裏面で地面などの反射光を吸収および発電します。
パネル表面でしか発電しない通常の片面型太陽光パネルとは異なり、自動車を保護しながら、多くの電気を発生させる効率のいいソーラーカーポートといえます。
特に反射光の多い環境でソーラーカーポートを導入する方やより発電量を伸ばしたい方などには、メリットの多いシステムです。

【3】旧型より発電効率がアップ
ネクストエナジーでは、日々太陽光発電システムの開発を続けています。
2024年時点で販売されているNER156-EPORT-KST-02は、旧型モデルNER-EPORT-KST-02の2台駐車用モデルと比較して発電量約15%アップしました。
ソーラーカーポートの発電量が改善されている点は、多くのユーザーにとってメリットのあるポイントですし、家計負担軽減につながります。
【4】錆に強さを発揮
ネクストエナジーのソーラーカーポートには、4段階中、最高グレードの表面処理陽極酸化複合皮膜A1種が施されているので耐久性が高く過酷な環境や紫外線でも長持ちします。
以下に材質と表面処理加工の概要を紹介します。
| 材料 | 表面処理 | |
| 架台本体 | アルミニウム合金(A6005C-T5) | 陽極酸化複合皮膜A1種 |
| ボルト類 | ステンレスSUS304 | SUS素地 |
カーポート部分が腐食してしまうと、カーポート部分の耐久性などに影響を与えてしまいますし、耐用年数より前に修理交換しなければいけない可能性も出てきます。
その点、ネクストエナジーのデュライトは、上記の様に表面処理加工にも力が入っているので、経年劣化を抑えられますし修理交換コストの削減につながります。
【5】雨漏りに強さを発揮
ソーラーカーポートのガラス屋根は、散水試験によって雨漏りに関する検査が行われています。また、止水版と二重の構造になっているので、天井からの雨漏りをしっかりと防いでくれます。
カーポートには、自家用車を紫外線や雨・ホコリ・花粉などの汚れやダメージから保護する役割があります。そこで雨漏りしてしまうと、自家用車に水垢といった汚れが付着してしまいます。また、雨に濡れないよう乗車・降車できないため、カーポートとしての機能性を重視している方にとって問題のある構造です。
ネクストエナジーのソーラーカーポートは、太陽光発電システムだけでなくカーポートとしての機能性にも目が向けられています。
雨漏りのしないソーラーカーポートを探している方には、メリットの大きな要素です。
ただし散水試験は雨漏り防止を完璧に保証しているわけではありません。
降雨の状況によっては、雨漏りの可能性はあるのでご注意ください。
【6】飛び火認定の取得でスムーズな導入を実現
ネクストエナジーのソーラーカーポートは、飛び火認定(DR認定)を取得しています。
飛び火認定は、屋根や柱などに関して一定の基準を満たした防火構造とみなされた状態を指しています。また、認定は、国土交通大臣によって行われます。
建築基準法上の防火地域、準防火地域、第22条指定区域でネクストエナジーのソーラーカーポートを設置する場合は建築確認申請を簡素化してもらえるため、よりスムーズに設置工事を進められるのが特徴です。
ソーラーカーポートの設置時は、形状やその他要素から建築確認申請の必要なケースがあります。そのため、住宅用太陽光発電と比較して申請手続きに手間がかかりやすい側面もあり、人によっては面倒に感じるポイントといえます。
しかし、ネクストエナジーのソーラーカーポートなら飛び火認定によって、建築確認申請を簡素化できる可能性があるので、スムーズな導入を実現できます。
【7】スタイリッシュなデザイン
雨桶や支柱には明るいステンレスカラーが使用されていて、住宅に上質な雰囲気を漂わせてくれます。
また、側面は見えないようにデザインされているので、横から見てもスタイリッシュな印象を与えます。

ソーラーカーポートによってデザインや柱・屋根の形状およびサイズは異なるので、ソーラーカーポートの発電量だけでなくカーポート部分のデザインや色味も確認した上で判断してみましょう。
【8】高品質だから長期保証が可能!
業界トップクラスのネクストエナジーでは、一般的なカーポートで適用される保証を上回る保証期間を約束しています。
具体的には、システム機器の保証15年、太陽光パネルのリニア出力保証30年という内容です。
システム機器の保証とは、製造時の不具合によって太陽光パネルや周辺機器などが故障している場合、保証期間内なら無償修理・交換してもらえるサービスのことです。
太陽光パネルのリニア出力保証は、指定の出力値を下回る変換効率を記録した場合に無償修理・交換を行ってくれるサービスを指しています。
なお、太陽光パネルの出力は年々減少するため、1年目に98%を保証値としてそれ以降は0.45%減算する方法がとられ、30年目の保証値は84.95%となります。
ネクストエナジーの保証サービスにかぎらずどの出力保証でも保証値は、毎年減少する点に気を付けましょう。
仕様
デュライトには、2台置き、3台置き、4台置きのタイプがあります。それぞれの仕様を解説します。
【設置条件】
| 耐風圧性能 | 設計基準風速38m/s以下 |
| 耐積雪性能 | 最大積雪60cm以下(積雪単位荷重20N/㎡・cm) 最大積雪99cm以下(積雪単位荷重20N/㎡・cm) |
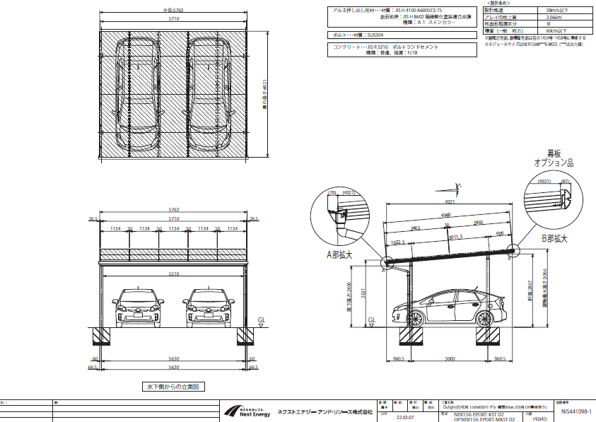
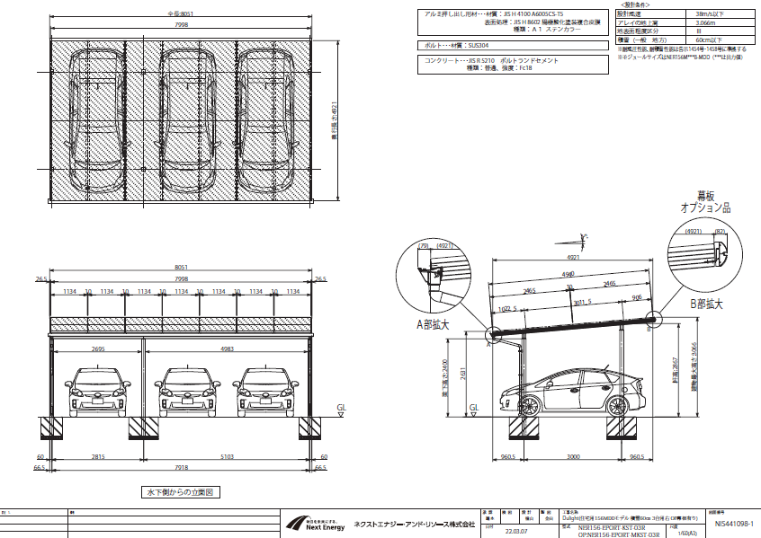
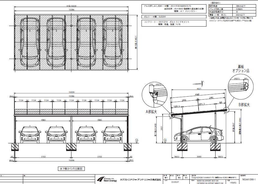
| 芯々寸法 | 2台用:W5630mm 3台用:W5103mm+W2815mm 4台用:W5103mm+W5103mm |
| 梁下高さ | 最下部高さGL+2400mm |
2台置き
定格出力5.85kW
使用モジュール:NER156M585B-MDD
設置枚数:10枚
寸法(奥行×間口):4,921mm×4,921mm


3台置き
定格出力:8.19kW
使用モジュール:NER156M585B-MDD
設置枚数:14枚
寸法(奥行×間口):4,921mm×8,051mm


4台置き
定格出力:10.53kW
使用モジュール:NER156M585B-MDD
設置枚数:18枚
寸法(奥行×間口):4,921mm×10,339mm


導入時のメリット
続いては、ネクストエナジーのソーラーカーポート「デュライト」を導入するメリットについて解説していきます。
災害時の停電対策が可能!
デュライトは、住宅用太陽光発電と同じく太陽光がある限り発電を続けるため、もし災害時に停電が発生しても自立運転機能により電気を取り出すことが可能です。
自立運転機能とは、太陽光発電システムを系統連系(電力会社の送配電網)から切り離し、自宅のコンセントや住宅設備にのみ給電できる機能のことです。
停電でもスマホの充電をしたり、灯りをつけたりすることができるため非常に安心です。
また、災害関連情報の収集に役立つ充電式ラジオやテレビは、デュライトで発電した電気によって稼働できるため、日々最新の情報を確認できます。
他にもデュライトの出力以下なら暖房や冷房、調理機器などを稼働できるので、通常時の生活に近い状態で避難生活を送れます。
※パワーコンディショナーの種類によっては自立運転機能がないものがあり、別途工事が必要になる場合があります
自家消費で家計の節約可能!
両面発電モジュールのデュライトは、裏面から地面の反射光を受けて発電することができるので非常に効率良く多くの発電量を得られます。また、発電した電気については、自宅コンセントや住宅設備を通じて自家消費することが可能です。
住宅用太陽光発電と同じように自家消費できるのは、家計負担や電気代が気になるご家庭にとって大きなメリットといえます。
たとえば、2台駐車可能なタイプのデュライト出力5.9kWは、東京都で運用すると年間約7048kWhの発電量を見込めます。
自家消費率は約30%程度なので、7048kWh×0.3=約2114kWhとなります。12ヶ月で割ると、1ヶ月あたり176.2kWh程度の自家消費量です。
1ヶ月あたりの消費電力量は2人世帯なら320kWh程度なので、30~40%程度の電気代を削減できる可能性があります。
また、蓄電池を併せて利用すれば、余った電力を売電ではなく蓄電池に貯めておき、発電できない夜間や消費電力量の多い時間帯に自家消費できるようになります。
自動車を守るだけでなく、家計の助けになることは大きなメリットです。
なお、自宅の電気使用量や節電方法については、以下の記事でも解説しています。気になる方はぜひ参考にしてみてください。
こんな方にオススメ
ソーラーカーポート Dulight(デュライト)は、こんな方にオススメです。
太陽光発電を導入したいけどあきらめていた人
住宅の屋根に設置するには抵抗がある。
築年数が経過しており屋根に設置することが厳しい。
近隣の住人に遠慮がある。
さまざまな理由で導入が困難だからソーラーパネルは無理。
そんな風に太陽光発電導入をあきらめていた人にこそソーラーカーポートデュライトはオススメです。
カーポートの屋根というデッドスペースを活用できるため、住宅の外観を損なったり隣人に遠慮したりする必要がありません。
また積雪や塩害などであきらめていた方も、デュライトは安全性を重視した強度設計のため安心して導入が可能です。
屋根に太陽光を載せられなかった方でも

積雪があるため、諦めていた方でも

塩害地域のため、諦めていた方でも

デュライトは太陽光パネルを載せるために作られた専用カーポート。
設計時からモジュールの重さをしっかりと想定した安心安全の強度計算で、大切な車を守ります。
また、デュライト150の場合は、積雪量150㎝以下までの荷重に対応できるので、積雪量の多い地域でも運用することが可能です。

設置工事に時間をかけたくない人
ソーラーカーポートの設置は通常の住宅へのソーラーパネル設置と違い、非常に簡単です。
そのため設置工事に時間がかかるのでは、騒音が続くのでは、という心配をする必要はありません。
たとえば、住宅に足場を構築する必要はありませんし、屋根に登って架台の組み立てや配線接続、太陽光パネルの設置作業といったこともありません。
とにかくスピーディに太陽光発電システムの設置を行いたい方、自宅に足場を設置されることに抵抗感がある方などは、ネクストエナジーのデュライトを検討してみてはいかがでしょうか。
災害時の非常用電源として使用したい人
災害などで電気が止まった場合、大きな困難に見舞われることは想像に難くないです。
電気が使用できないと、簡単な調理も難しい状況です。また、照明が使用できないため、懐中電灯でも夜間の移動時に怪我してしまうリスクもあります。
さらに、テレビは使用できませんし、ラジオの電池がなくなってしまうと災害情報の収集もできなくなってしまいます。
そんなときにデュライトで電気を取り出すことができれば非常に助かりますね。また、家庭用蓄電池と併用すれば日中に発電した電気を貯めておき、夜間や消費電力量の多い場面でも電気を使用できるようになります。
また、ガソリン式発電機などと異なり、燃料の購入および保管管理が不要です。
万が一の災害の時に非常用電源として利用したい方にも最適です。
EV(電気自動車)を所有・購入を検討している人
EVを利用するためには充電を行わなければなりません。
自宅に給電設備がない場合は電力会社から電気を買う、もしくは充電の必要な時に都度充電スタンドまで行かなくてはなりません。
ソーラーカーポートのデュライトで発電して家庭用蓄電池に電気を貯めておけば、自宅でいつでもEVに充電が可能で非常に便利です。
また、電気代削減効果を伸ばせるので、家計負担が気になっている方にもおすすめです。
環境問題に貢献したい人
ソーラーカーポートは、再生可能エネルギーの太陽光発電です。
これは自然エネルギーを活用した環境に負荷が少ない再生可能エネルギーになります。具体的には、発電時に二酸化炭素を排出しないクリーンな設備です。
火力発電は、化石燃料を燃焼させてタービンを回転し、発電する仕組みです。また、化石燃料の燃焼時に二酸化炭素を排出してしまうため、環境へ負荷がかかる側面もあります。
今や気候変動問題は深刻化していて、私たちの生活基盤に影響を与える可能性があります。
環境問題に関心があり、環境に負荷をかけたくないと考えている方は、デュライトの導入によって環境に貢献することが可能です。
ネクストエナジーならではの「安心の長期保証」

前半でも触れたようにネクストエナジーのソーラーカーポート「デュライト」には、同メーカーの保証制度が適用されます。
システム機器保証は、太陽光パネルを含むシステムが製造時の不具合によって故障した場合、無償で修理交換してくれます。また、15年の長期保証なので、設置からしばらくしたのちに不具合を見つけても無償修理サービスを受けやすいといえます。
リニア出力保証は、既定の出力値を下回る出力になっている場合に太陽光パネルの無償修理交換を行ってもらえるサービスで、万が一の故障・不具合による修理コストを抑えられます。
※1 ネクストエナジー所定の対象機器ご購入で、システムごと保証します。
※2 補償対象機器(太陽電池モジュールのガラスを含む)の小さな傷や、汚れなど保険対象の機能に直接関係のない外形上の損傷は、補償対象外です。自然災害補償の対象は太陽光発電システム容量 1,000kW 以下となります。
システム容量が 1,000kW を超える場合は補償対象外となります。
導入時の注意点
デュライトの導入時の注意のポイントは以下になります。
注意点をしっかりと把握して導入を検討しましょう。
設置スペースをしっかりと検討する
ソーラーカーポートの設置を検討する際は、太陽光がきちんと当たる発電効率の良い場所に設置しましょう。
影が落ちたりして太陽光が妨げられると発電に支障をきたします。
また、シミュレーションの想定より発電量が低くなってしまい、収支バランスを維持できない可能性も出てきます。
そのため、ソーラーカーポートを導入する際は、太陽光発電が可能な環境か施工販売業者に調査してもらい、しっかりとした設置場所を検討することが大切です。
また、製品の寸法にも留意しながら、発電が可能な設置場所を検討することが大切です。
※資料は積雪60㎝以下仕様です
2台置き

3台置き

4台置き

導入目的を明確に!
デュライトで発電する目的をはっきりとしておくことで、同時に設置する機械設備を検討することができます。
たとえばEVに充電したい場合は、家庭用の蓄電池が必要です。
どのような目的で導入するのかしっかりと考慮することで、より有益な使い方が可能になります。
よくわからない場合は、専門業者に相談することも大切なので気軽に相談してみましょう。
ご要望や今後のライフスタイルなどお伺いしながら、最適なプランをご提案いたしますので
お気軽にご相談くださいませ。
まとめ
ネクストエナジーのソーラーカーポート「デュライト」シリーズは、両面発電型太陽光パネルを搭載しているのが特長の1つです。また、積雪や耐風圧に対しても、一定の強度を保っているので、積雪や強風による影響が気になっている方にもおすすめです。
カーポートの設置を検討している方や家庭の光熱費負担を抑えたい方などは、ネクストエナジーのデュライトを検討してみてはいかがでしょうか。
エコでんちでは、太陽光発電・ソーラーカーポート、家庭用蓄電池、V2Hのご提案から販売、施工、アフターフォローまで一括サポートしております。
また、メーカーからの大量仕入れとネット販売に特化したことで、価格を抑えながらご提供することが可能です。
さらに、環境省公的資格「うちエコ診断士」を取得したスタッフが、100種類以上もの製品から、お客様のご要望などに合った製品をご提案いたします。
お電話やメールの他、公式LINEからも受け付けているので、ぜひお気軽にご相談ください。



















